大阪府大東市の中古一戸建て一覧

  • 価格

  • 土地面積

  • 建物面積

  • 駅徒歩

  • 間取り

2 件 / 全54件

  1. 1

チェックした物件をまとめて

■JR片町線『野崎』駅徒歩9分の立地です♪ ■南向きバルコニーなので陽当り良好です♪

間取り
外観

650万円

 

所在地

大阪府大東市野崎4丁目

交通

JR片町線 『野崎駅』 まで徒歩9分
JR片町線 『四条畷駅』 まで徒歩28分
JR片町線 『住道駅』 まで徒歩32分

建物面積 64.58m2 間取り 4DK 建物構造 木造
土地面積 54.05m2 築年月 1981年05月 学区 四条小学校(約120m)
  • パノラマ写真
  • リフォーム済
  • 駐車場あり
  • 写真5枚以上
  • オープンハウス開催

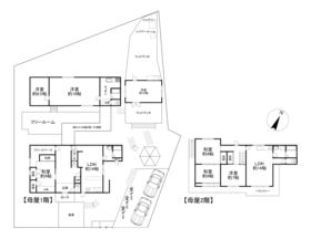
■敷地面積約150坪♪ ■間取り7SLDKのファミリータイプ♪ ■お気軽にお問い合わせください♪

間取り
外観

2,980万円

 

所在地

大阪府大東市野崎3丁目

交通

JR片町線 『野崎駅』 まで徒歩16分
JR片町線 『四条畷駅』 まで徒歩30分
JR片町線 『住道駅』 まで徒歩37分

建物面積 178.06m2 間取り 7LDK+S 建物構造 RC
土地面積 495.85m2 築年月 1967年01月 学区 四条小学校(約350m)
  • パノラマ写真
  • リフォーム済
  • 駐車場あり
  • 写真5枚以上
  • オープンハウス開催

もっとたくさん物件がみたい!という方へ

店頭ではHPに掲載できない物件を併せて
1,662件をご案内できます!

来店予約して物件を探す お気軽にご来店下さい!

店頭で

ご希望にマッチした物件や、新着・値下げ情報を
即日メールにてお届けします!

マイページに希望情報を登録する 新着物件メールもお届け!

Webで

2 件 / 全54件

  1. 1

どんな街か、もっと知りたい!
地元密着のスタッフがお応えいたします!

来店予約して物件を探す お気軽にご来店下さい! スタッフ

ページトップ

ページトップ